Serving Medicine Hat Since 1955

line
  • Main Office

  • 403 4th St. SE Medicine Hat

905 Clennel Crescent SE

Medicine Hat
home Current Listings MLS® A2292931

905 Clennel Crescent SE, Medicine Hat

$189,500

Property Description

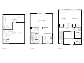
This two-story townhouse in Southview offers practical living with three bedrooms upstairs, including a primary with a walk-in closet, and a full bathroom. The living room opens to a spacious fenced backyard with no neighbors behind, providing privacy for outdoor activities. Laundry is conveniently located in the basement and a concrete driveway completes the setup. Located in a well-established Southview neighborhood, you’re close to parks, schools, shopping, and local amenities, making everyday life easy and convenient. Contact a real estate agent today to schedule a viewing!

926 sqft 3 1

Share Property:

Quick Summary

Listing Details
MLS® Number A2292931
Status Active
Price $189,500
Listing Agent BRYAN DE JONG
Tax Details
Tax Year 2025
Annual Tax Amount $1359.30
Key Metrics
Year Built 1976
Living Area 926 sqft
Bedrooms 3
Bathrooms 1
Garage No

Property Features

Inclusions

  • hood fan
  • central air
  • Older Deep Freezer \"As Is\"
  • Stove

Interior Features

  • Ceiling Fan(s)
  • Closet Organizers
  • Storage
  • Walk-In Closet(s)

Parking Features

  • Concrete Driveway
  • Off Street
  • Parking Pad

Room Sizes

Main

Foyer 3`7" x 12`9"
Living Room 16`11" x 10`0"
Eat in Kitchen 7`8" x 12`9"

Upper

Bedroom 6`10" x 12`10"
Bedroom 9`10" x 12`10"
Bedroom - Primary 8`0" x 9`4"
Walk-In Closet 4`10" x 4`1"
4pc Bathroom 4`10" x 8`5"

Basement

Game Room 12`0" x 15`9"
Storage 4`3" x 7`8"
Furnace/Utility Room 16`4" x 10`11"

Contact Agent

BRYAN DE JONG

Phone:
Email:
Office:

403-952-2224

bryan.dejong@2percentrealty.ca

2 PERCENT REALTY

New Listings

1479 26 Street SE

Medicine Hat

$399,900

5518 Township Road 120 Road

Rural Cypress County

$1,098,000

905 Clennel Crescent SE

Medicine Hat

$189,500

A2 Forty Mile Park

Rural Forty Mile No. 8, County of

$124,900

Open Houses

Property Map

Similar Properties