Serving Medicine Hat Since 1955

line
  • Main Office

  • 403 4th St. SE Medicine Hat

#423 29 River Ridge Drive NW

Medicine Hat
home Current Listings MLS® A2277765

#423 29 River Ridge Drive NW, Medicine Hat

$314,500

Property Description

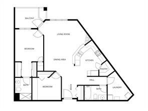
Don’t miss this updated 4th floor unit with beautiful views and featuring TWO titled parking spots. Located in the desired, gated, 55+ community of River Ridge Estates, this beautifully refreshed residence immediately stands apart with its thoughtfully angled layout–designed to feel open and bright. Featuring the Meadow 1 floor plan, there are only 4 units with this floor plan in the entire building. The foyer opens into a spacious central living and dining area. Large windows and an open-concept design create a light-filled, welcoming atmosphere. Just off the living space, a balcony extends the home outward, offering a quiet place to enjoy fresh air and a gorgeous view of the courtyard, greenery, and river. The kitchen features stainless steel appliances, generous counter space, a full pantry, and room for bar-stool seating–perfect for casual meals, conversation, and entertaining. The home includes a large laundry room (with updated washer /dryer), adding storage and everyday practicality. A memory-foam murphy bed is seamlessly incorporated into the 2nd bedroom/office, providing flexible overnight accommodations without sacrificing flow or comfort. The primary bedroom is a serene retreat with a linen closet, a large walk-through closet, and a three-piece ensuite featuring a walk-in shower. This home has been carefully maintained and thoughtfully updated, including new flooring, paint, and backsplash in 2019, new appliances in 2020, and a new heating coil installed in fall 2025–providing long-term comfort and peace of mind. Beyond the suite, River Ridge Estates offers an exceptional lifestyle with amenities reminiscent of a private club: an indoor pool, hot tub, sauna (with aroma-therapy), fitness centre, theatre, library, games room, guest suites, patio with a gas firepit and a beautifully landscaped outdoor courtyard. Everyday conveniences include underground parking with storage, a car wash, workshop, and two parking stalls–one underground and one outdoor with an electrical outlet. This well-established, and scenic community is known for its tranquility, strong sense of community, and beautifully maintained surroundings–offering refined adult living in a highly desirable location. To truly experience the flow, comfort, and lifestyle this home provides, contact your real estate agent to arrange a private showing.

1057 sqft 2 2
Share Property:

Quick Summary

MLS® Number A2277765
Status Active
Price $314,500
Listing Agent BRYAN DE JONG
Year Built 2005
Living Area 1057 sqft
Bedrooms 2
Bathrooms 2
Condo Fees $692.38
Garage No

Property Features

Inclusions

  • OTR Microwave
  • Murphy Bed with Foam Mattress

Interior Features

  • Breakfast Bar
  • No Animal Home
  • No Smoking Home

Parking Features

  • Additional Parking
  • Stall
  • Titled
  • Underground

Room Sizes

Main

Foyer 5`10" x 8`2"
Living/Dining Room Combination 13`9" x 11`10"
Living/Dining Room Combination 18`2" x 9`10"
Balcony 11`11" x 7`8"
Kitchen 14`4" x 11`4"
Pantry 5`10" x 5`10"
Laundry 9`7" x 11`1"
4pc Bathroom 8`7" x 5`6"
Bedroom 11`0" x 10`10"
Bedroom - Primary 10`10" x 18`4"
3pc Ensuite bath 6`3" x 8`7"

Contact Agent

BRYAN DE JONG

Phone:
Email:
Office:

403-952-2224

bryan.dejong@2percentrealty.ca

2 PERCENT REALTY

New Listings

219 4 Street SE

Redcliff

$259,900

212 11 Street NE

Medicine Hat

$293,000

294 Fleet Street SW

Medicine Hat

$99,900

#31 2248 Southview Drive SE

Medicine Hat

$95,900

Open Houses

Property Map

Similar Properties