Serving Medicine Hat Since 1955

line
  • Main Office

  • 403 4th St. SE Medicine Hat

15507 Range Road 23

Schuler
home Current Listings MLS® A2260587

15507 Range Road 23 , Schuler

$299,700

Property Description

51.4 Acres of land 30 mins from Dunmore and 8 min from Schuler. Only 350 meters off Hwy 41. Has barbwire fencing and corrals around the property making this a great opportunity for a cattle ranch. There is a coulee dividing two areas of land that have been cultivated in years past. The property has 2 wells, One used for the house and the other for livestock water. The same owner of the property for the last 40 years, has farmed the portions of cultivated land and also had Cattle, Horses and Chickens. There are various outbuildings, some were used for chicken Coops, 1 is currently a workshop, and there is a barn. Mobile home as a newer furnace (2 yrs old) and recently updated deck. Fully fenced area around the front of the home. Enjoy wide open prairie views from the current home, or Explore the opportunity to build your dream home in this peaceful location. If you are looking for a good size plot of country property to put your roots down, this could be it! Contact an agent to find out more and book your showing.

1152 sqft 3 2
Share Property:

Quick Summary

MLS® Number A2260587
Status Active
Price $299,700
Listing Agent BRYAN DE JONG
Year Built 1986
Living Area 1152 sqft
Bedrooms 3
Bathrooms 2
Garage No

Property Features

Inclusions

  • Sheds and Out Buildings 'as is where is'
  • OTR Microwave
  • Dishwasher 'as is'
  • 2 Functioning Wells
  • Iron Fencing
  • Fire Pit
  • Pressure Tank
  • Hot Water Tank (est 7 Years Old)
  • Furnace (2 Years Old)
  • Shelving in Work Shop

Interior Features

  • Skylight(s)

Parking Features

  • Off Street
  • RV Access/Parking

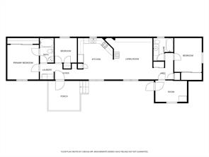
Room Sizes

Main

Foyer 8`5" x 5`10"
Bedroom 8`1" x 8`11"
4pc Ensuite bath 5`1" x 8`11"
Bedroom - Primary 11`6" x 12`7"
Kitchen 12`9" x 15`1"
Living Room 14`5" x 15`1"
Den 11`7" x 7`10"
4pc Bathroom 7`3" x 8`3"
Bedroom 10`0" x 12`4"

Contact Agent

BRYAN DE JONG

Phone:
Email:
Office:

403-952-2224

bryan.dejong@2percentrealty.ca

2 PERCENT REALTY

New Listings

#Lot 6 12003 Range Road 60A

Rural Cypress County

$267,700

Township Road 120

Rural Cypress County

$1,197,000

6101 10 Avenue NW

Medicine Hat

$580,000

#Lot 7 12003 Range Road 60A

Rural Cypress County

$143,700

Open Houses

Property Map

Similar Properties