Serving Medicine Hat Since 1955

line
  • Main Office

  • 403 4th St. SE Medicine Hat

33 Ross Glen Road SE

Medicine Hat
home Current Listings MLS® A2295066

33 Ross Glen Road SE, Medicine Hat

$299,900

Property Description

Attention First Time Buyers or Revenue Property Seekers!! Check out this great family home in Ross Glen with 2+1 bedrooms, 1 & ½ bathrooms located across from Ross Glen school. This bi-level offers over 900 square feet of living space and has low maintenance stone front landscaping, large deck in the rear, perfect for entertaining, and a huge back yard with additional parking spaces for more vehicles, boat or RV in the rear. It is perfect for kids, pets and has plenty of room to build your future dream garage! Main floor offers large living room, dining area and kitchen, 2 bedrooms and 4 piece bathroom. Lower levels has an additional bedroom, 2 piece bathroom, a family room which has been used as a 4th bedroom, plus lots of storage space! The Furnace & Central Air Conditioner were replaced in 2019. The shingles approximately 10 years ago. This home has so much potential! Contact your favourite agent to view!

920 sqft 3 2

Share Property:

Quick Summary

Listing Details
MLS® Number A2295066
Status Active
Price $299,900
Listing Agent JACKIE TOWNSHEND
Tax Details
Tax Year 2025
Annual Tax Amount $2543.00
Key Metrics
Year Built 1977
Living Area 920 sqft
Bedrooms 3
Bathrooms 2
Garage No

Property Features

Inclusions

  • Fridge
  • Stove
  • Dishwasher
  • Washer
  • Dryer.

Interior Features

  • See Remarks

Parking Features

  • Alley Access
  • Off Street
  • See Remarks

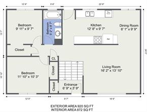
Room Sizes

Main

Entrance 6`9" x 3`9"
Living Room 16`2" x 13`10"
Dining Room 9`9" x 6`1"
Kitchen 12`8" x 9`7"
Bedroom - Primary 11`10" x 10`3"
Bedroom 9`11" x 9`7"
4pc Bathroom 0`0" x 0`0"

Basement

Family Room 15`1" x 11`8"
Bedroom 11`8" x 10`10"
Storage 18`0" x 9`0"
2pc Bathroom 0`0" x 0`0"
Storage 11`2" x 9`0"

Contact Agent

JACKIE TOWNSHEND

Phone:
Email:
Office:

403-581-6655

JackieTownshend@royallepage.ca

ROYAL LEPAGE COMMUNITY REALTY

New Listings

91 Sierra Road SW

Medicine Hat

$559,000

3216 13 Avenue SE

Medicine Hat

$5.00

592 Hemingway Crescent NE

Medicine Hat

$714,900

124 East 7 Avenue

Dunmore

$467,500

Open Houses

Property Map

Similar Properties